Projekt "SNOWSTAR"

„Chalet SNOWSTAR, CH-3910 Saas-Grund“


Kaufpreis:  CHF 1.490.000,00 inkl. 2 PKW- Stellplätze

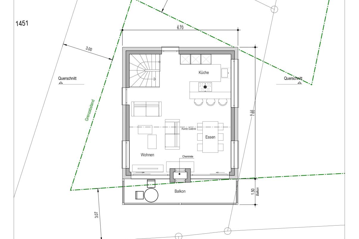
Objektart:  Eigenständiges Chalet mit 150 qm Wohnfläche (135 qm BGF + anteilig Balkon/Terrasse) & 194 qm Grundstückgröße  |  EG: 2 Schlafzimmer mit Badezimmer  |  1.OG: Wohnküche, Esszimmer & Wohnzimmer | 2.OG: Büro, Lese-Ecke, 2. Wohnzimmer  | Unbeschreiblicher Gletscherblick  |  Schweizer Neubauqualität  | Baubeginn 2025.

Lage:  Im Weiler „Zen Lauinen“ des Saastals im Kanton Wallis | Unverbaubare Blickbeziehungen zu den umliegenden Gipfeln der Viertausender | E-Bus vor der Tür direkt zum Skizirkus Saas-Fee/Alpin Express | Autofreie Gartenanlage I Parken in der Nachbarschaft | 300 Tage Sonne im Jahr | Schneesicherheit der drei vor der Türe liegenden Skigebiete von 1.600 m.ü.M. auf bis zu 3.600m.ü.M.

Beschreibung:  Im Zuge der laufenden Quartierentwicklung im Weiler "Zen Lauinen" kann dieses freistehende Hauptwohnungschalet als Neubau individuell besprochen und erstellt werden. Das eigene Grundstück (Parzelle 1449) wird über das benachbarte Mehrfamilienhaus erschlossen und bleibt somit im direkten Umfeld autofrei und sehr ruhig und privat gelegen.            

Für den Erwerb wird die Wohnsitznahme in Saas-Grund vorausgesetzt. Der Erwerb durch Schweizerbürger oder Ausländer mit Permit B oder C in der Schweiz ist ebenso möglich, wenn der anschließende Dauermieter im Chalet seinen Steuersitz in Saas-Grund bezieht.

Der Baubeginn kann individuell in 2025 erfolgen. Fertigstellung 1 Jahr nach Baubeginn. Grundrissmodifikationen sind zu diesem Zeitpunkt gerne angeboten. So kann das Galeriegeschoss auch zu einem ganzen Geschoss erweitert werden. Ein zusätzliches Bad im Dachgeschoss ist ebenfalls vorstellbar. Das Chalet wird nicht unterkellert. Als Erweiterungsfläche und Kellerersatzraum, kann in einem benachbarten Stadel ein Geschoss zugeordnet und genutzt werden.

Ein PDF mit den Grundrissen finden Sie HIER